Photos Hove Beach House
Brighton & Hove - 12 Marine Avenue
Situated in Brighton & Hove, less than 1 km from Hove Beach, Hove Beach House features recently renovated accommodation with free WiFi and a garden. The property is around 3.7 km from i360 Observation Tower, 3.8 km from The Brighton Centre and 4.2 km from Churchill Square Shopping Centre. Parking on-site is available and the apartment also provides bike hire for guests who want to explore the surrounding area.
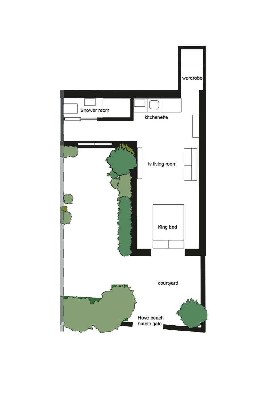
The apartment has 1 bedroom, 1 bathroom, bed linen, towels, a flat-screen TV with streaming services, a dining area, a fully equipped kitchenette, and a patio with garden views. Guests can enjoy a meal on an outdoor dining area while overlooking thecourtyard views. For added privacy, the accommodation has a private entrance and soundproofing.
The apartment has a picnic areayou can spend a day out in the open.
Brighton Pier is 4.6 km from the apartment, while Brighton railway station is 4.9 km from the property. London Gatwick Airport is 40 km away.
The hotel day starts from hour 15:00 and ends at 11:00.
This property will not accommodate hen, stag or similar parties.
Please inform in advance of your expected arrival time. You can use the Special Requests box when booking, or contact the property directly with the contact details provided in your confirmation.
Managed by a private host
Apartment with Garden View. Boasting a private entrance, this apartment includes 1 living room, 1 separate bedroom and 1 bathroom with a walk-in shower and a hairdryer. In the well-equipped kitchenette, guests will find a refrigerator, kitchenware, a microwave and a toaster. The apartment offers soundproof walls, a tea and coffee maker, a seating area, a flat-screen TV with streaming services, as well as garden views. The unit has 1 bed.
Additional information about the offer Great Britain - Brighton & Hove - Hove Beach House, opinions of holidaymakers as well as available dates can be found on the website our partner.
Book now
Offer from our partner: Booking.com BG.6863236









